こんにちは。お得が大好きな遊人です。
我が家は今の家もこれから建てる家もビルトインガレージです。
我が家の希望のガレージについて記載します。
今の家のビルトインガレージ
今の家のビルトインガレージは幅が2730mmで、西側の外壁の中央が空いています。

ガレージに車を駐車した場合、運転席側と助手席側の両方のドアを開けることができません。
なので、バックで建物側に寄せて駐車し、助手席側から乗り降りしています。
運転席と助手席でウォークスルーできる車なので良いですが、運転席と助手席を移動できない車だと、一旦ガレージから車を出して家族を乗り降りさせないといけません。
狭い土地を最大限活用して床面積とガレージを作ったのでしょうがないのですが、このガレージの狭さは使い勝手が悪いです。
今の家は買い物もほとんど徒歩圏内で済むので、あまり車を使う機会がなく、年間走行距離は3000km程度でした。
これから建てる家は、今ほど便利な立地ではないため、車を使う機会が増えると想定し、使い勝手の良いガレージにしたいと考えています。
希望のガレージ
これから建てる家では、ガレージを広くして家族が運転席側と助手席側の両側から乗り降りできるようにしたいと思っています。
ちなみに家族は、苦労して車を乗り降りしているのは運転手である私だけなので今のガレージに不満はありません・・・。
インナーガレージにしない理由
3方向を壁で囲みシャッターを付けてインナーガレージにすることも考えましたが、以下の理由でやめました。
- シャッターの開け閉めがめんどくさい
- 室内っぽくなるので掃除しないといけない気がする
- 片側の外壁を空けないとかなり幅広にしないと両側のドアが開けられない
- 県民ルールで3640mmを超えると柱か壁が必要
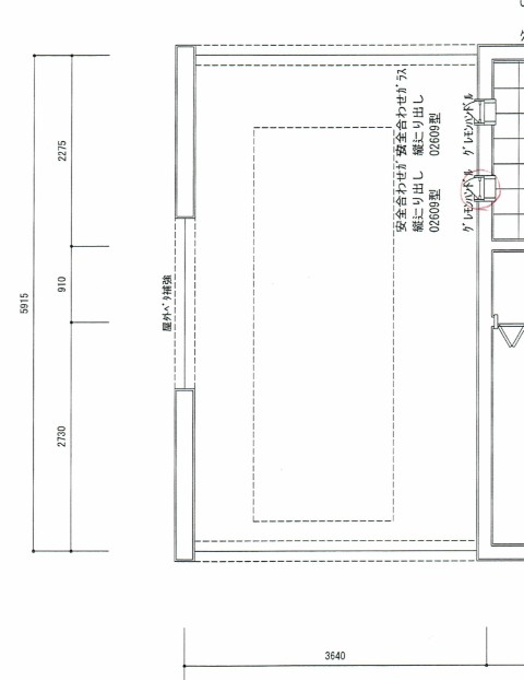
今回のガレージ計画
とりあえずガレージに駐車している車の両側ドアが開けられれば良いので、幅が3640mmで、西側の外壁の中央を開けました。

外壁の中央を開けることで以下のように車のドアを少し大きく開けることができます。

我が家はハッチバックも開けられる位置に駐車しているのでこの程度ですが、もっと奥に駐車すればドアを全開に開けることも可能です。
高齢者や子供がいる家庭では、ドアを大きく開けられるガレージはストレスが無いと思います。
ビルトインガレージにする理由
ビルトインガレージにする理由は、土地代とビルトインガレージの価格を比較してビルトインガレージの方が経済合理性が高いためです。
もう少し土地が安いエリアだったり、県民共済住宅以外であればカーポートを建てると思います。
EV対策
今はハイブリッド車に乗っていますが、将来EV車が欲しくなるかもしれません。
なので、ガレージに200VのEV用コンセントと100Vコンセントを付けておこうと思います。
太陽光パネルを屋根に載せる予定なので、EV車のメリットを享受できるはずですが、車は去年買い替えたばかりなので、いつになるかはわかりません。




